
倘若您有什么疑問或是對我公司有任何
的意見和建議都可通過:
的意見和建議都可通過:
公司名稱: 鞏義市西村鎮華豐給排水材料廠
公司地址: 河南省鞏義市西村開發區
電話: 0371-64033589
手機: 18638168566,13683712868
13783416000(技術)
聯系人: 王先生,位女士
郵政編碼: 451200
E-MAIL: 1696257948@qq.com
網址:http://www.zuche0536.com/
網址:http://www.zuche0536.com/
ZYFJB矩形風道纖維織物補償器
標簽:該產品可按照客戶要求訂做,如需訂做請向客服提供您的參數表
華豐竭誠為您服務,熱線電話0371-64033589

我公司生產的矩形纖維織物補償器主要安裝使用于高溫、中溫、低溫熱風管道、煙風管道和高頻機械振動的管道部位。采用標準優化設計,具有柔性好,耐腐蝕、耐高溫、耐磨損和疲勞壽命長的特點,可吸收管道的軸向、橫向及三向位移。已成為國內大型鋼鐵廠的配套產品,產品質量穩定可靠。
ZYFJB型矩形風道纖維織物補償器介紹:
ZYFJB型矩形風道纖維織物補償器主要由非金屬圈帶、隔熱材料和鋼結構件組成,其中非金屬圈帶由纖維織物硅橡膠、氟塑料等性能優異的非金屬材料優化組合而成,具有良好的吸聲、減震、耐高溫、耐腐蝕和密封性能并能同時吸收軸向、角向、側向等各個方向的位移。
ZYFJB型矩形風道纖維織物補償器性能:
矩形風道纖維織物補償器具有柔性好,耐腐蝕、耐高溫、耐磨損和疲勞壽命長的特點,可吸收管道的軸向、橫向及三向位移。
矩形風道纖維織物補償器廣泛應用于鋼鐵廠、冶煉廠、石油化工廠,火力發電廠、水泥廠及原子能電廠等排煙脫硫,除塵設備,空氣加熱,助流鼓風等設備的出入口處,它都大大優于金屬伸縮節,因此深得用戶的一致好批評,得到大力推廣應用。
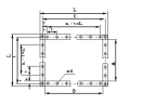
主要連接尺寸:
| 產品規格 | 管道外徑 | A | B | L1 | L2 | C1 | C2 | t | t1 | t2 | t3 | L1 | L2 | n1 | n2 | c1/C2 | d | 螺栓孔數 |
| 700×500 | 700×500 | 702 | 502 | 792 | 592 | 760 | 560 | 95 | 95 | 95 | 90 | 570 | 380 | 6 | 4 | 29/29 | 14 | 28 |
| 700×700 | 700×700 | 702 | 702 | 792 | 792 | 760 | 760 | 95 | 95 | 95 | 95 | 570 | 570 | 6 | 6 | 29/29 | 14 | 32 |
| 700×800 | 700×800 | 702 | 802 | 814 | 914 | 774 | 874 | 112 | 110 | 109 | 110 | 550 | 654 | 5 | 6 | 36/36 | 18 | 30 |
| 800×800 | 800×800 | 802 | 802 | 914 | 914 | 874 | 874 | 110 | 109 | 109 | 110 | 654 | 654 | 6 | 6 | 36/36 | 18 | 32 |
| 800×1200 | 800×1200 | 802 | 1202 | 914 | 1314 | 874 | 1274 | 110 | 109 | 116 | 115 | 654 | 1044 | 6 | 9 | 36/36 | 18 | 38 |
| 800×1600 | 800×1600 | 802 | 1602 | 914 | 1714 | 874 | 1674 | 110 | 109 | 119 | 123 | 654 | 1428 | 6 | 12 | 36/36 | 18 | 44 |
| 900×400 | 900×400 | 902 | 402 | 992 | 492 | 960 | 460 | 96 | 96 | 92 | 92 | 768 | 276 | 8 | 3 | 36/36 | 14 | 30 |
| 900×700 | 900×700 | 902 | 702 | 1014 | 814 | 974 | 774 | 124 | 121 | 110 | 112 | 726 | 550 | 6 | 5 | 36/36 | 18 | 30 |
| 900×1200 | 900×1200 | 902 | 1202 | 1014 | 1314 | 974 | 1274 | 124 | 120 | 110 | 115 | 726 | 1044 | 6 | 9 | 36/36 | 18 | 38 |
| 1000×600 | 1000×600 | 1002 | 602 | 1114 | 714 | 1074 | 674 | 117 | 120 | 112 | 113 | 840 | 448 | 7 | 4 | 36/36 | 18 | 30 |
| 1000×700 | 1000×700 | 1002 | 702 | 1114 | 814 | 1074 | 774 | 117 | 120 | 110 | 112 | 840 | 550 | 7 | 5 | 36/36 | 18 | 32 |
| 1000×800 | 1000×800 | 1002 | 802 | 1114 | 914 | 1074 | 874 | 117 | 120 | 109 | 110 | 840 | 654 | 7 | 6 | 36/36 | 18 | 34 |
| 1000×1000 | 1000×1000 | 1002 | 1002 | 1114 | 1114 | 1074 | 1074 | 117 | 116 | 120 | 117 | 840 | 840 | 7 | 7 | 36/36 | 18 | 36 |
| 1200×600 | 1200×600 | 1202 | 1002 | 1314 | 714 | 1274 | 674 | 115 | 116 | 112 | 113 | 1044 | 448 | 9 | 4 | 36/36 | 18 | 34 |
| 1200×700 | 1200×700 | 1202 | 1002 | 1314 | 814 | 1274 | 774 | 115 | 116 | 110 | 112 | 1044 | 550 | 9 | 5 | 36/36 | 18 | 36 |
| 1200×800 | 1200×800 | 1202 | 1002 | 1314 | 914 | 1274 | 874 | 115 | 116 | 115 | 116 | 1044 | 654 | 9 | 6 | 36/36 | 18 | 38 |
| 1200×1000 | 1200×1000 | 1202 | 1202 | 1314 | 1114 | 1274 | 1074 | 115 | 116 | 120 | 117 | 1044 | 840 | 9 | 7 | 36/36 | 18 | 40 |
| 1200×1200 | 1200×1200 | 1202 | 1202 | 1314 | 1314 | 1274 | 1274 | 115 | 116 | 116 | 115 | 1044 | 1044 | 9 | 9 | 36/36 | 18 | 44 |
| 1400×700 | 1400×700 | 1402 | 702 | 1514 | 814 | 1474 | 774 | 110 | 114 | 110 | 112 | 1254 | 550 | 11 | 5 | 36/36 | 18 | 40 |
| 1400×800 | 1400×800 | 1402 | 802 | 1514 | 914 | 1474 | 874 | 110 | 114 | 109 | 110 | 1254 | 654 | 11 | 6 | 36/36 | 18 | 42 |
| 1400×900 | 1400×900 | 1402 | 902 | 1514 | 1014 | 1474 | 974 | 110 | 114 | 121 | 124 | 1254 | 726 | 11 | 6 | 36/36 | 18 | 42 |
| 1400×1000 | 1400×1000 | 1402 | 1002 | 1514 | 1114 | 1474 | 1074 | 110 | 114 | 120 | 117 | 1254 | 840 | 11 | 7 | 36/36 | 18 | 44 |
| 1400×1200 | 1400×1200 | 1402 | 1202 | 1514 | 1314 | 1474 | 1274 | 110 | 114 | 116 | 115 | 1254 | 1044 | 11 | 9 | 36/36 | 18 | 48 |
| 1500×800 | 1500×800 | 1502 | 802 | 1614 | 914 | 1574 | 874 | 116 | 122 | 109 | 110 | 1342 | 654 | 11 | 6 | 36/36 | 18 | 42 |
| 1500×900 | 1500×900 | 1502 | 902 | 1614 | 1014 | 1574 | 974 | 116 | 122 | 121 | 124 | 1342 | 726 | 11 | 6 | 36/36 | 18 | 42 |
| 1500×1000 | 1500×1000 | 1502 | 1202 | 1614 | 1114 | 1574 | 1074 | 116 | 122 | 120 | 117 | 1342 | 840 | 11 | 7 | 36/36 | 18 | 44 |
| 1500×1200 | 1500×1200 | 1502 | 1202 | 1614 | 1314 | 1574 | 1274 | 116 | 122 | 116 | 115 | 1342 | 1044 | 11 | 9 | 36/36 | 18 | 48 |
| 1600×1000 | 1600×1000 | 1602 | 1002 | 1714 | 1114 | 1674 | 1074 | 117 | 120 | 120 | 117 | 1440 | 840 | 12 | 7 | 36/36 | 18 | 46 |
| 1600×1200 | 1600×1200 | 1602 | 1202 | 1714 | 1314 | 1674 | 1274 | 117 | 120 | 116 | 115 | 1440 | 1044 | 12 | 9 | 36/36 | 18 | 50 |
| 1600×1400 | 1600×1400 | 1602 | 1402 | 1728 | 1528 | 1678 | 1478 | 139 | 140 | 134 | 136 | 1440 | 1206 | 10 | 9 | 36/36 | 22 | 46 |
| 1600×1600 | 1600×1400 | 1602 | 1402 | 1728 | 1728 | 1678 | 1678 | 139 | 140 | 140 | 139 | 1400 | 1400 | 10 | 10 | 36/36 | 22 | 48 |
| 1800×900 | 1800×900 | 1802 | 1602 | 1914 | 1014 | 1874 | 1874 | 118 | 117 | 121 | 124 | 1638 | 726 | 14 | 6 | 36/36 | 18 | 48 |
| 1800×1000 | 1800×1000 | 1802 | 902 | 1914 | 1114 | 1874 | 1874 | 118 | 117 | 120 | 117 | 1638 | 840 | 14 | 7 | 36/36 | 18 | 50 |
| 1800×1200 | 1800×1200 | 1802 | 1002 | 1928 | 1328 | 1874 | 1878 | 135 | 134 | 142 | 142 | 1608 | 994 | 12 | 7 | 36/36 | 18 | 46 |
| 1800×1400 | 1800×1400 | 1802 | 1202 | 1928 | 1528 | 1874 | 1878 | 135 | 134 | 134 | 136 | 1608 | 1026 | 12 | 9 | 36/36 | 18 | 50 |
| 1800×1800 | 1800×1800 | 1802 | 1802 | 1928 | 1928 | 1874 | 1878 | 135 | 134 | 134 | 135 | 1680 | 1608 | 12 | 12 | 36/36 | 18 | 56 |
| 2000×1000 | 2000×1000 | 2002 | 1004 | 1928 | 1130 | 1874 | 1878 | 135 | 134 | 134 | 135 | 1680 | 810 | 12 | 6 | 36/36 | 18 | 46 |
更多產品詳情可來電咨詢
聯系人:王先生 13783416000 魏女士 13683712868
上一篇:FGFB型矩形波紋補償器
下一篇:ZB型圓形纖維織物補償器
版權所有:華豐管道 地址:河南省鞏義市西村開發區 服務熱線:0371-64033589 管理入口E-MAIL: 1696257948@qq.com 手機: 18638168566,13783416000
網站備案/許可證號: 豫ICP備11026537號-5
豫公網安備 41910102000259號 技術支持:鞏義開啟網絡
本網站支持新廣告法,為不影響客戶瀏覽,頁面區域用詞正在排查修改,本店所有頁面絕對化用詞和功能性用詞在此聲明前全部失效,不接受不妥協任何形式的絕對化用詞和功能性用詞賠付,希望各位消費者理解,職業打假人高抬貴手。 網站備案/許可證號: 豫ICP備11026537號-5
豫公網安備 41910102000259號 技術支持:鞏義開啟網絡
